SCEAUX – COLBERT
CONSTRUCTION DE 12 LOGEMENTS SOCIAUX
MAÎTRISE D’OUVRAGE
SCEAUX HABITAT
MAÎTRISE D’OEUVRE
Renée FLORET-SCHEIDE
Architecte cotraitante
HERMANN KAUFMANN Architecte associé TCEP
Ingénierie BET TCE
TOHIER
Économiste
LOCALISATION
92330 Sceaux
CALENDRIER
Lauréat consultation 2011
SURFACE
1030 m2
MONTANT
2,8 M€
DÉMARCHE ENVIRONNEMENTALE
Certification PH&E
Plan Climat de Paris
BBC
Effinergie
PASSIVHAUS
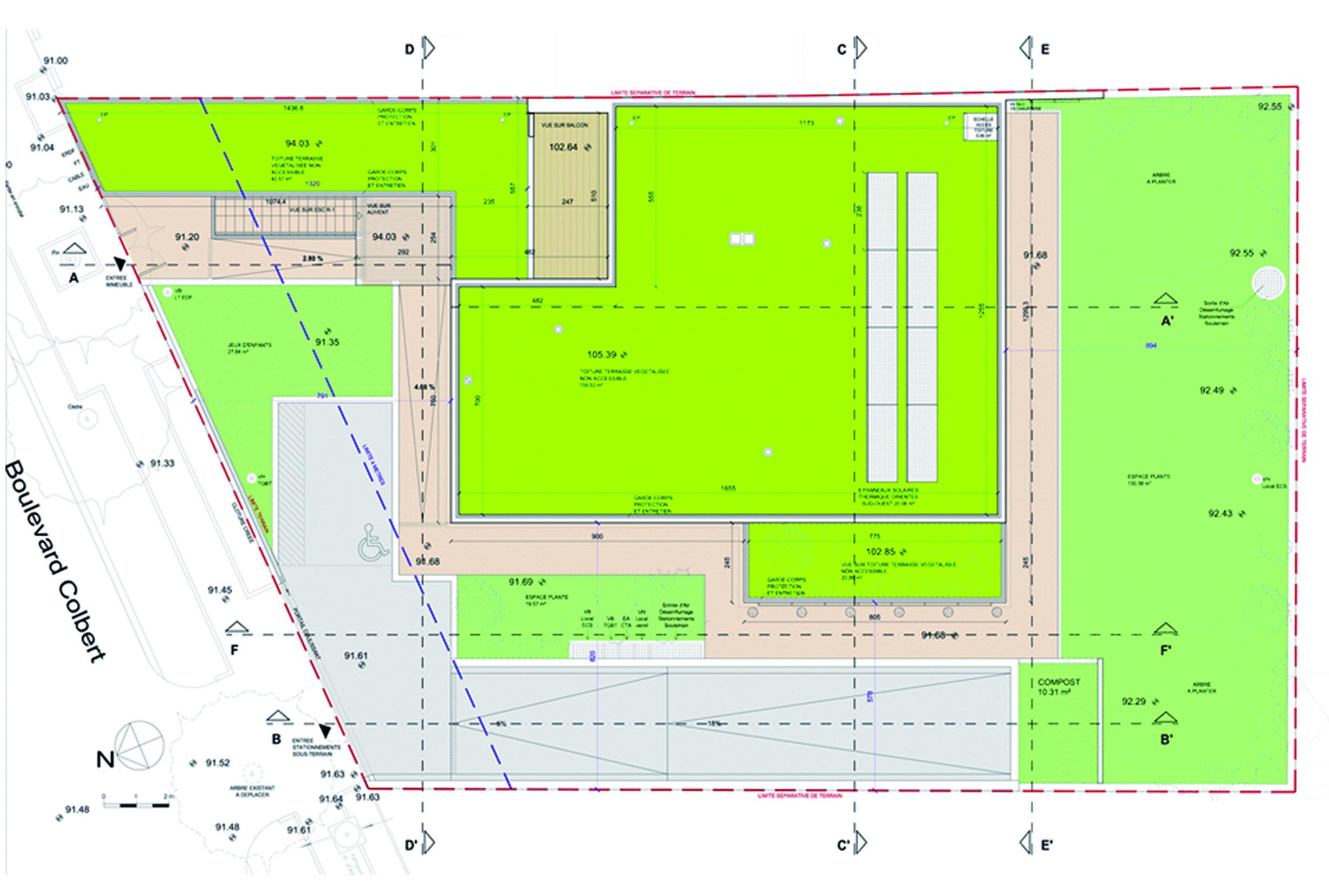
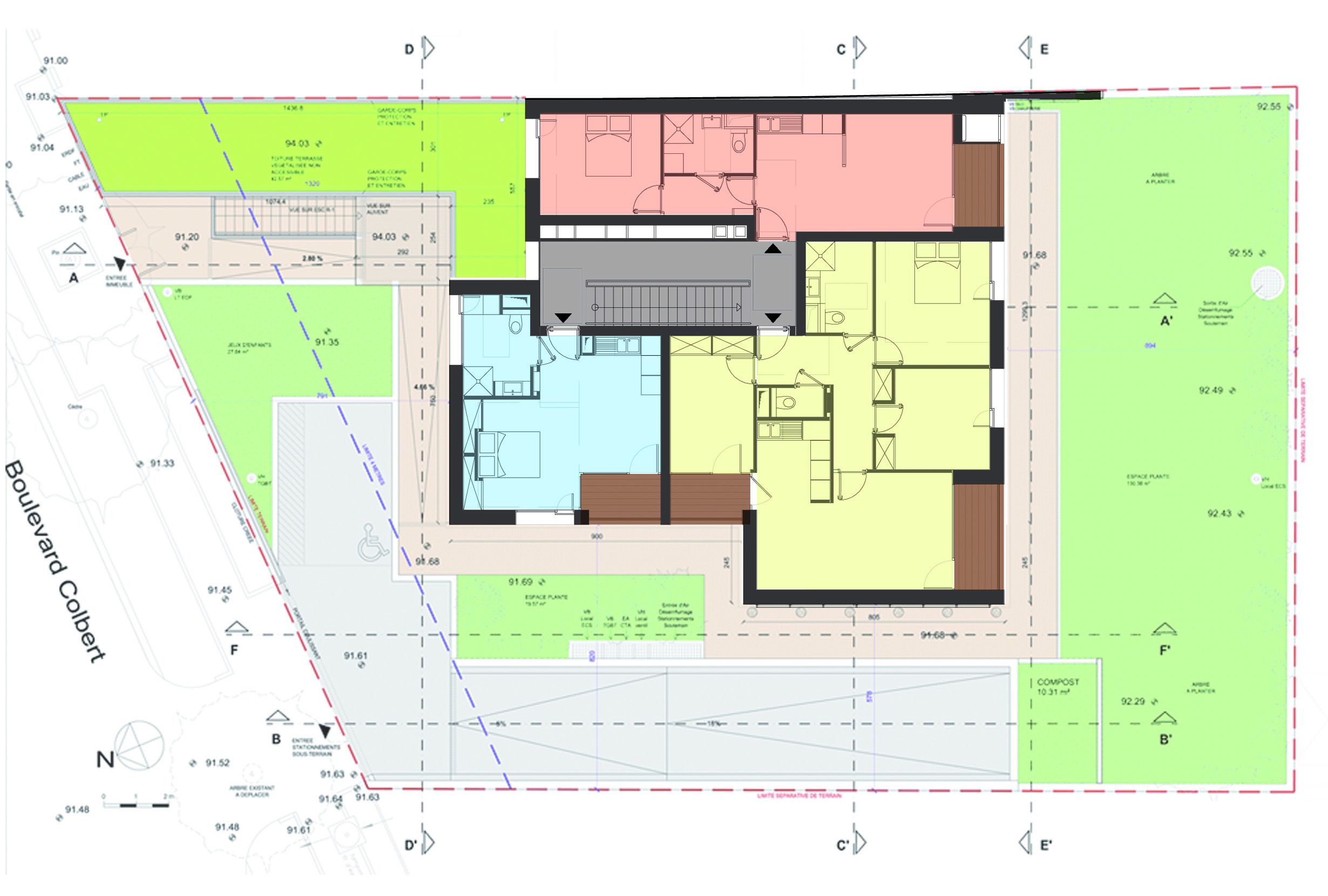
Cette consultation dont nous avons été lauréats en 2011 en collaboration avec HERMANN KAUFMANN architecte concerne la construction de 12 logements sociaux à Sceaux (92).
Le bâtiment que nous avons conçu repose sur une structure mixte béton armé et bois supportant des façades en bardage bois.
Ses besoins en chauffage sont extrêmement bas. Grâce à une isolation adaptée, à l’optimisation des apports solaires passifs et à une ventilation double flux avec récupérateur de chaleur, sa consommation de chauffage peut être inférieure à 15 kWh/m²/an.
Conçu pour avoir une consommation d’énergie primaire inférieure à 50 kWH/m²/an, notre projet remplit les critères du Plan Climat de la Ville de Paris ainsi que ceux nécessaires à l’obtention des certifications PH&E, PASSIVHAUS et du label BBC Effinergie.



